N-terrace
ベルロード沿いの複合テナント!!コインランドリー跡の居抜き物件です!(内容は要確認)
- 賃料/坪単価
- 27万5,000円 /
1.38万円
- 坪数/面積
- 19.96坪 /
66.00㎡
- 所在階
- -
- 管理費・共益費
- -
- 保証金
- 125万円
- 礼金
- 0ヶ月
-
初期費用シミュレーションこの物件を借りた場合の初期費用の一例です。
- 賃料
- 管理費・共益費
- 保証金:
- 礼金
- 前家賃(日割り) ※1
-
- 前家賃(日割り)
- 仲介手数料 ※2
- その他費用
- 合計
※1. 1か月を30日として計算しています。
※2. 仲介手数料は仮の価格となりますので、実際の価格に関してはお気軽にお問い合わせ下さい。
情報の見方担当者のコメント 柴田襄

- 県道沿いの路面テナント! 共用駐車場があり来客者には便利です。
コインランドリー後の居抜き物件です(内容は要確認)。
ポイント・特徴
物件概要
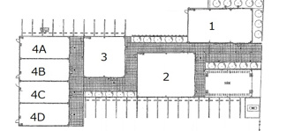
【店舗事務所】 物件番号:90697405 情報更新日:2026年02月02日 次回更新予定日:2026年02月16日所在地 滋賀県彦根市西今町 交通 坪数(面積) 19.96坪(66.00㎡) 賃料/坪単価 27.5万円/1.38万円 管理費・共益費 - 敷金/礼金/保証金 0ヶ月/0ヶ月/125万円 償却/敷引 -/- 更新料 - 権利金/雑費 -/- 造作譲渡金 - 駐車場/月額料金 空有/5,500円 (税込) 従業員用駐車料2台までは無料(但し軽区画)。来客用駐車料は共用で無料。 保険加入/料金 有/- 保険名/保険期間 -/- 保証人代行義務 必加入 保証会社 その他 保証会社詳細 USEN 初回:賃料等総額の100%、以後1年毎に賃料等総額の10% 口座振替手数料400円(税別)/月 向き - 築年月(築年数) 2020年 6月 (築5年) 契約期間 10年 種別/構造 店舗事務所/鉄骨造 用途地域 近隣商業 部屋/所在階/階建 4-D/-/1階建 総戸数 7戸 現況/引渡時期 空家/相談 取引態様 一般媒介 物件番号 90697405 取引条件の有効期限 2026年02月16日 設備条件 - 事務所可
- 飲食店可
- 法人契約希望
- スケルトン渡し
- ロードサイド
- 路面店
- 都市ガス
- 公営水道
- 公共下水
- 電気有
- 駐輪場
- 防犯カメラ
備考 ※保証金償却
5年以内の解約:全額償却 5~10年以内の解約:50%償却 10年以上:全額返却
※従業員駐車料:2台まで無料(場所は指定・軽区画) それ以上は別途加算
※退去時 鍵交換費用別途要
※地元自治会に加入する事
※コインランドリー跡の居抜き物件。トイレ(便器、間仕切り建具、床壁天井)、自動ドア、空調機(冷媒配管)は残す。その他の内装・設備は前借主と相談。前借主と譲渡金、権利金の相談要。
◆彦根市周辺の賃貸・アパート・マンションなら地域密着の シバタ不動産まで。シャーメゾン・D-Room取扱店 売買・無料査定・買取・空き家相談も行っております TEL (0749)23-2401◆
☆株式会社シバタ不動産☆は、宅地分譲をメインに彦根市を中心としたエリアで賃貸・売買問わず戸建・土地・マンション・分譲住宅地・古民家など多数物件を取り揃えております。不動売却査定や不動産買取、相続に関することなど不動産に関することなら何でもお気軽にご相談ください。取扱会社 - (株)シバタ不動産
- 滋賀県彦根市西今町963-5
- TEL:0749-23-2401
- 滋賀県知事 (9) 第1934号
- (公社)滋賀県宅地建物取引業協会
※地図上に表示される物件の位置は付近住所に所在することを表すものであり、実際の物件所在地とは異なる場合がございます。
物件お問い合わせ
- 掲載物件数
-
件
- 本日の更新件数
-
件
N-terraceの他の空室
この物件を見た方へのお勧め物件
- SISビル東館
- 25.432万円 -/112.40㎡
- 滋賀県彦根市大東町
- 東海道本線「彦根」駅 徒歩2分
- nonoHana南彦根
- 25.3万円 -/111.12㎡
- 滋賀県彦根市高宮町
- 東海道本線「南彦根」駅 徒歩7分
- 元町ビル
- 22万円 -/166.54㎡
- 滋賀県彦根市元町
- 東海道本線「彦根」駅 徒歩8分
- びわ湖岸道路に面する店舗
- 33万円 -/266.38㎡
- 滋賀県彦根市松原町
- 東海道本線「彦根」駅 徒歩44分
- SISビル西館
- 39.4102万円 -/157.91㎡
- 滋賀県彦根市大東町
- 東海道本線「彦根」駅 徒歩3分




















